Thang máy 450kg là dòng thang máy gia đình được sử dụng rất phổ biến hàng đầu hiện nay. Bạn không khó để tìm thấy sự xuất hiện của nó ở những ngôi nhà từ 3-10 tầng. Thang máy tải trọng 450kg có sức chứa 6-7 người, phù hợp với các công trình có diện tích sàn từ 45m2 trở lên. Thang máy gia đình 450kg do Thang Máy Taza Việt Nam cung cấp được trang bị những công nghệ hiện đại bậc nhất, tối ưu không gian hiệu quả và giá thành vô cùng hợp lý. Cùng Thang máy Taza Việt Nam tìm hiểu các thiết bị kỹ thuật, kích thước thang máy 450kg và các thông tin liên quan trong bài viết này nhé!

Với những công trình ở Việt Nam, đa số đều phù hợp để lắp đặt thang máy tải trọng 450kg. Toàn bộ phần hố thang có tổng diện tích chỉ khoảng 4m2 (1900mm x 1900mm); có thể vận chuyển 6-7 người một lượt. Bên cạnh đó, mức điện năng tiêu thụ trung bình mỗi tháng chỉ khoảng 500.000 đồng. Đó chính là lí do vì sao dòng thang này được hầu hết các hộ gia đình lựa chọn lắp đặt.
Xem thêm:
Thông số kỹ thuật của thang máy 450Kg
Dưới đây là thông số kỹ thuật của thang máy gia đình 450kg để bạn tham khảo. Nếu công trình của bạn không đáp ứng được các thông số trên thì đừng quá lo lắng, Thang Máy Taza Việt Nam sẽ có những phương án phù hợp với không gian thực tế của công trình!
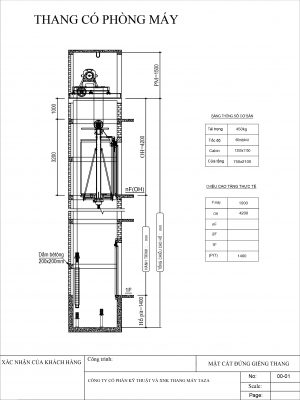
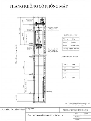
- Kích thước hố thang 450kg: 1750mm (rộng) x 1600mm (sâu)
- Kích thước cabin thang máy 450kg: 1200mm (rộng)x 1000mm (sâu) x 2300mm (cao)
- Kích thước cửa thang: 700mm (rộng) x 2100mm (cao) – Loại cửa mở trung tâm về hai phía
- Hố pít (tối thiểu): 500mm
- OH (tính từ sàn cuối cùng có cửa thang máy lên đến sàn phòng máy): 4200mm
- Phòng máy: 1500mm (đối với loại thang có phòng máy)
Thiết bị thang máy gia đình 450Kg
Tùy vào nhu cầu sử dụng, tình trạng công trình, khả năng tài chính mà Thang Máy Taza Việt Nam sử dụng các thiết bị lắp đặt thang máy 450kg phù hợp nhất, khách hàng có thể yên tâm sử dụng:
- Máy kéo: Mitsubishi, Montanari (đối với thang có phòng máy), Ziehl Abegg, Montanari, Fuji, TorinDrive, Nippon (đối với loại thang không phòng máy)
- Điều khiển tín hiệu: PLC Mitsubishi – Nhật Bản
- Điều khiển động lực (điều khiển tốc độ): Mitsubishi (hoặc Fuji) – Nhật Bản
- Điều khiển tốc độ đóng mở cửa: Mitsubishi (hoặc Fuji) – Nhật Bản
- Relay, contactor, CB: Mitsubishi (hoặc Fuji) – Nhật Bản
- Cáp tín hiệu: Vemas – Italia
- Bộ truyền động cửa cabin và cửa tầng: Ningbo – Xinda (Trung Quốc), đây là thương hiệu nổi tiếng nhất và tốt nhất hiện nay.
Các thiết bị sử dụng cho thang máy do Công ty thang máy TAZA cung cấp trên thị trường Việt Nam đều là sản phẩm chính hãng, đảm bảo nguồn gốc xuất xứ rõ ràng. Bên cạnh đó, những thiết bị chính như máy kéo, bộ điều khiển tín hiệu, biến tần, rail, cáp tải mà chúng tôi cung cấp đều có giấy tờ chứng minh chất lượng và nguồn gốc sản phẩm (C/Q và C/O) đầy đủ, đảm bảo quyền lợi và để khách hàng an tâm sử dụng.
Thiết bị nội thất thang máy 450kg
Phần cabin, cửa tầng thang máy 450kg được sản xuất ở trong nước trên dây chuyền và máy móc hiện đại bậc nhất hiện nay, sử dụng lại Inox 304 nhập khẩu chuyên dùng cho thang máy với độ hoàn thiện cực cao, đảm bảo tính thẩm mỹ. Thang Máy Taza Việt Nam cung cấp rất nhiều mẫu mã nội thất thang máy để khách hàng lựa chọn (có những phương án tiêu chuẩn và các phương án tùy chọn theo tình trạng thực tế và yêu cầu của khách hàng). Để lựa chọn nội thất cabin thang máy phù hợp nhất, thì Quý khách hàng sẽ được chuyên viên kinh doanh của công ty chúng tôi tư vấn và hướng dẫn lựa chọn chi tiết nhất.

Thiết kế cabin tiêu chuẩn (standard)
- Vách cabin: Inox sọc nhuyễn kết hợp với inox gương. Mỗi vách cabin sẽ được ghép từ 3 tấm inox, tấm ở giữa là inox gương.
- Trần thang máy: Tùy chọn miễn phí theo catalogue
- Sàn thang máy: Đá granite tự nhiên cao cấp, mẫu mã đa dạng
- Tay vịn: Tùy chọn miễn phí theo catalogue
- Bảng điều khiển cabin và bảng gọi tầng: Tùy chọn miễn phí theo catalogue
Bản vẽ thiết kế thang máy gia đình tải trọng 450Kg
Như đã nói ở trên, kích thước hố thang máy thông thủy của loại 450kg là 1600mm x 1600mm (kích thước này có thể thay đổi tăng hay giảm một chút), phần tường bao xung quanh hố có thể xây dày 200mm hoặc 100mm (đối với những nhà có diện tích hẹp cần tiết kiệm diện tích hố thang).
Thang máy Taza Việt Nam xin giới thiệu đến Quý khách hàng bản vẽ kỹ thuật bao gồm các đặc tính kỹ thuật và kích thước thang máy 450kg để bạn tham khảo:
THANG MÁY CÓ PHÒNG MÁY
THANG MÁY KHÔNG CÓ PHÒNG MÁY
Báo giá thang máy gia đình 450kg
Cũng giống như các dòng thang máy nói chung, giá thang máy 350kg hay giá thang máy 450kg sẽ có sự chênh lệch tùy vào tường thương hiệu, loại động cơ, thiết bị nội thất mà quý khách hàng lựa chọn. Bên cạnh đó, với dòng thang liên doanh và thang nhập khẩu cũng có sự chênh lệch đáng kể. Hiện nay, giá thang máy gia đình 450kg liên doanh thường giao động là từ 300.000.000 đến 450.000.000 triệu đồng, còn báo giá thang máy 450kg nhập khẩu nguyên chiếc lên đến 600.000.000 đến 900.000.000 triệu đồng. Đây chỉ là mức giá tham khảo chúng tôi đưa ra để bạn dễ hình dung. Còn việc báo giá thang máy cụ thể như thế nào sẽ phục thuộc vào các yếu tố sau:
- Số tầng: số tầng càng nhiều thì giá thang máy càng cao và chi phí lắp đặt cũng cao hơn.
- Thang máy không phòng máy sẽ có giá thành cao hơn thang có phòng máy
- Xuất xứ: xuất xứ của thang máy hay các thiết bị, động cơ thang máy khác nhau, giá thành cũng sẽ khác nhau
- Vật liệu làm thang máy: Với chất liệu làm cabin, giếng thang đa dạng như kính cường lực, inox gương, inox hoa văn,… nên mức giá cũng khác nhau.
- Công ty thang máy: cũng sẽ ảnh hưởng đến giá, mỗi đơn vị sẽ có một mức giá thang máy và chi phí lắp đặt khác nhau.
Cách lựa chọn thang máy 450kg phù hợp
Khi lựa chọn thang máy gia đình 450kg hay bất kì các dòng thang máy nào cần xem xét một số lưu ý để cân nhắc lựa chọn được dòng thang máy phù hợp:
- Diện tích công trình: Đối với những công trình mới hay cải tạo có diện tích hạn chế thì cần lựa chọn thang máy với kích thước phù hợp và đặc biệt lựa chọn vị trí lắp đặt hợp lý. Còn nếu nhà bạn có diện tích khá rộng rãi thì việc lắp đặt thang máy trở nên dễ dàng, thuận lợi hơn bao giờ hết.
- Nhu cầu sử dụng: Gia đình bạn có bao nhiêu người sử dụng? tần suất sử dụng như thế nào? không gian lắp đặt ra sao. Để từ đó có phương án lựa chọn được dòng thang máy phù hợp nhất.
- Số lượng thành viên: thang máy gia đình 450kg thường tải được từ 5-7 người/lượt. Vì vậy những gia đình có số lượng người sử dụng nhiều hơn nên cân nhắc lựa chọn những chọn những dòng thang có tải trọng lớn hơn.
- Giá thành: thang máy liên doanh và nhập khẩu với mức giá chênh lệch không hề nhỏ, cân nhắc tài chính để lựa chọn được dòng thang máy có mức giá phù hợp nhất.
- Đơn vị lắp đặt: đặc biệt cần nghiêm túc tìm hiểu và lựa chọn những đơn vị uy tín để được tư vấn – cung cấp – lắp đặt thang máy chính hãng, phù hợp, giá thành hợp lý, bảo hành lâu dài.
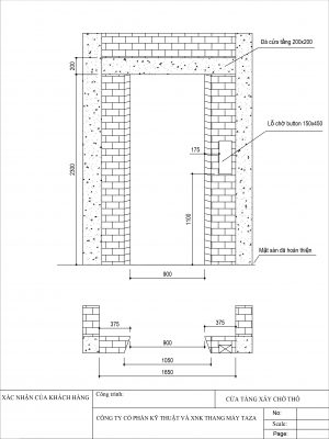
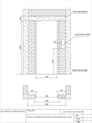
Những lưu ý khi xây hố thang cho thang máy 450kg
Việc xây dựng hố thang máy nói chung cũng như cho thang máy gia đình 450kg cần phải lưu ý những vấn đề sau:
- Hố pít phải đảm bảo về chiều sâu, yêu cầu chống thấm đúng tiêu chuẩn
- Làm đà linteau cửa tầng
- Đà linteau đúng giữa tầng ở ba mặt hố để bắt rail dẫn hướng
- Thi công sàn phòng máy đúng vẽ với dầm chịu lực, các lỗ kỹ thuật (phần này rất quan trọng; kỹ thuật viên của Taza sẽ kiểm tra, giám sát chặt chẽ trong quá trình thi công)
- Để móc treo pa lăng
- Để chờ hộp button cửa tầng.
Thang máy Taza Việt Nam với 10 năm kinh nghiệm, trở thành cung cấp các Giải Pháp Thang Máy Uy Tín Nhất Hiện Nay. Để nhận được báo giá cụ thể và chi tiết nhất, Quý khách vui lòng liên hệ Hotline: 0969 514 888 hoặc đăng ký thông tin nhận báo giá thang máy gia đình 450kg, ngay khi nhận được thông tin thì nhân viên tư vấn thang máy sẽ gọi điện và gửi báo giá cho Quý khách.
>>> Xem thêm: Thang máy lồng kính
Công ty cổ phần kỹ thuật và xuất nhập khẩu thang máy TAZA Việt Nam
- Trụ sở Hà Nội: Số 70, Phố Dương Khuê, Phường Mỹ Đình 2, Quận Nam Từ Liêm, Hà Nội
- Chi nhánh Bắc Ninh: Số 37-LK4, Khu DV Long Phương, P. Trang Hạ, TP. Từ Sơn, Tỉnh Bắc Ninh
- Hotline: 0969 514 888
- Email: thangmaytaza@gmail.com
- Facebook: https://www.facebook.com/thangmaytazavietnam/















