Thang máy 350kg là mức tải trọng thang máy gia đình phổ biến nhất hiện nay. Loại thang này được sử dụng nhiều bởi tính phù hợp của nó đối với nhiều dạng công trình khác nhau. Từ những công trình chỉ đơn thuần là nhà ở dành cho hộ gia đình, cho đến các công trình xây dựng với mục đích kinh kết hợp vừa ở vừa cho thuê, các tòa loại văn phòng nhỏ, chung cư mini đều phù hợp để lắp đặt sử dụng loại thang máy này. Bài viết này sẽ giúp bạn nắm rõ hơn về kích thước, các đặc tính kỹ thuật và báo giá thang máy gia đình 350kg.

Với các công trình có diện tích từ 60m2 trở lên thì đều phù hợp để có thể lắp đặt thang máy gia đình có trọng tải 350kg. Toàn bộ phần hố thang có tổng diện tích chưa đến 4m2 (1900mm x 1900mm). Với mức tải trọng này thì thang máy có thể chưa được 5 người mỗi lần di chuyển. Mức tiêu thụ điện năng thấp. Trung bình chỉ khoảng trên dưới 500.000 đồng mỗi tháng. Đây là loại thang máy có thể nói là tốt nhất dành cho hộ gia đình
Kích thước thang máy 350Kg
Dưới đây là một số thông tin về kích thước thang máy gia đình 350kg để bạn tham khảo:
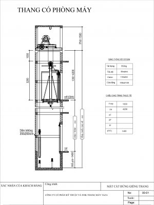
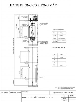
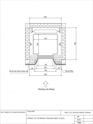
- Kích thước hố thang máy 350kg: 1500mm (rộng) x 1500mm (sâu)
- Kích thước cabin thang máy : 1100mm (rộng)x 900mm (sâu) x 2300mm (cao)
- Kích thước cửa: 700mm (rộng) x 2100mm (cao) – Loại cửa mở trung tâm về hai phía
- Hố pít (tối thiểu): 500mm
- OH (tính từ sàn cuối cùng có cửa thang máy lên đến sàn phòng máy): 4200mm
- Phòng máy: 1400mm (loại có phòng máy)
Thiết bị thang máy 350Kg
- Máy kéo: Mitsubishi, Montanari (loại có phòng máy), Ziehl Abegg, Montanari, Fuji, TorinDrive, Nippon (đối với loại thang không phòng máy)
- Điều khiển tín hiệu: PLC Mitsubishi – Made in Japan
- Điều khiển động lực (điều khiển tốc độ): Mitsubishi (hoặc Fuji) – Made in Japan
- Điều khiển tốc độ đóng mở cửa: Mitsubishi (hoặc Fuji) – Made in Japan
- Relay, contactor, CB: Mitsubishi (hoặc Fuji) – Made in Japan
- Cáp tín hiệu: Vemas – Made in Italia
- Bộ truyền động cửa cabin và cửa tầng: Ningbo – Xinda (Made in China), đây là thương hiệu nổi tiếng nhất và tốt nhất hiện nay.
Các thiết bị thang máy do Công ty thang máy TAZA Việt Nam cung cấp trên thị trường đều là sản phẩm chính hãng, đảm bảo đúng nguồn gốc, xuất xứ rõ ràng. Còn đối với những thiết bị chính và quan trọng như máy kéo, tủ điện, biến tần, rail, cáp tải… đều có đầy đủ giấy tờ chứng minh chất lượng và nguồn gốc sản phẩm (C/Q và C/O) để khách hàng có thể kiểm tra rõ ràng và an tâm khi sử dụng.
Thiết bị ngoại thất
Phần cabin thang máy cũng như cửa tầng là phần được sản xuất ở trong nước trên dây chuyền và máy móc hiện đại bậc nhất hiện nay, sử dụng lại Inox 304 nhập khẩu chuyên dùng cho thang máy với độ hoàn thiện cực cao, đảm bảo tính thẩm mỹ.
Chúng tôi cung cấp rất nhiều mẫu mã để Quý khách hàng lựa chọn (có những option tiêu chuẩn và các optione tùy chọn), để lựa chọn nội thất cabin thang máy thì Quý khách hàng sẽ được chuyên viên kinh doanh của công ty chúng tôi tư vấn và hướng dẫn chọn cụ thể.

Thiết kế cabin tiêu chuẩn (standard)
- Vách cabin: Inox sọc nhuyễn (inox vân tóc) kết hợp với inox gương. Mỗi vách cabin sẽ được ghép từ 3 tấm inox, tấm ở giữa sẽ là inox gương.
- Trần thang máy: Chọn miễn phí theo catalogue
- Sàn thang máy: Đá granite tự nhiên
- Tay vịn:Chọn miễn phí theo catalogue
- Bảng điều khiển cabin và bảng gọi tầng: Chọn miễn phí theo catalogue
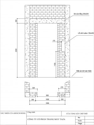
Bản vẽ thiết kế thang máy gia đình tải trọng 350Kg
Như đã nói ở trên, kích thước hố thang máy thông thủy của loại 350kg là 1500mm x 1500mm (kích thước này có thể thay đổi tăng hay giảm một chút), phần tường bao xung quanh hố có thể xây dày 200mm hoặc 100mm (đối với những nhà có diện tích hẹp cần tiết kiệm diện tích hố thang).
Thang máy Taza Việt Nam xin giới thiệu đến Quý khách hàng bản vẽ kỹ thuật của loại thang máy này với kích thước tiêu chuẩn:
THANG MÁY CÓ PHÒNG MÁY
THANG MÁY KHÔNG CÓ PHÒNG MÁY
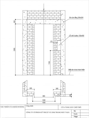
Những lưu ý khi xây hố thang:
- Hố pít phải đảm bảo về chiều sâu, yêu cầu chống thấm
- Làm đà linteau cửa tầng
- Đà linteau đúng giữa tầng ở ba mặt hố để bắt rail dẫn hướng (2 mặt bên hông và mặt đáy)
- Thi công sàn phòng máy đúng vẽ với dầm chịu lực, các lỗ kỹ thuật (phần này rất quan trọng nên kỹ thuật viên bên công ty thang máy sẽ kiểm tra, giám sát trong quá trình thi công)
- Để móc treo pa lăng.
- Để chờ hộp button cửa tầng
Để nhận được báo giá thang máy cụ thể và chi tiết nhất, Quý khách vui lòng liên hệ: Hotline: 0969 514 888 hoặc đăng ký thông tin nhận báo giá thang máy 350kg – báo giá thang máy gia đình 350kg, ngay khi nhận được thông tin thì nhân viên tư vấn thang máy sẽ gọi điện và gửi báo giá cho Quý khách.
Công ty cổ phần kỹ thuật và xuất nhập khẩu thang máy TAZA Việt Nam
- Trụ sở Hà Nội: Số 70, Phố Dương Khuê, Phường Mỹ Đình 2, Quận Nam Từ Liêm, Hà Nội
- Chi nhánh Bắc Ninh: Số 37-LK4, Khu DV Long Phương, P. Trang Hạ, TP. Từ Sơn, Tỉnh Bắc Ninh
- Hotline: 0969 514 888
- Email: thangmaytaza@gmail.com
- Facebook: https://www.facebook.com/thangmaytazavietnam/















