Lắp đặt thang máy là một trong những giải pháp hiện đại giúp nâng cao tiện nghi và giá trị sử dụng của công trình. Tuy nhiên, chi phí lắp đặt thang máy không cố định mà phụ thuộc vào nhiều yếu tố khác nhau. Việc hiểu rõ các yếu tố này không chỉ giúp Quý khách lựa chọn loại thang máy phù hợp mà còn tối ưu hóa ngân sách đầu tư. Trong bài viết này, chúng ta sẽ cùng phân tích chi tiết yếu tố tác động đến chi phí lắp đặt thang máy, từ loại thang máy, số tầng sử dụng, cho đến các yêu cầu kỹ thuật đặc thù.
1. Loại thang máy

Loại thang máy Quý khách chọn là một trong những yếu tố quan trọng nhất quyết định chi phí lắp đặt. Hiện nay, có nhiều loại thang máy khác nhau trên thị trường, bao gồm:
- Thang máy gia đình: được sử dụng trong các căn nhà phố, biệt thự. Phục vụ nhu cầu di chuyển trong gia đình. Có tải trọng nhỏ từ 350kg đến 550kg. Chi phí lắp đặt thấp hơn so với các loại thang máy khác.
- Thang máy tải khách: Sử dụng cho các tòa nhà văn phòng, chung cư, khách sạn. Giá thành cao hơn do yêu cầu thiết kế phức tạp và khả năng chịu tải lớn.
- Thang máy tải hàng: Dùng trong nhà xưởng, kho bãi, thường có tải trọng lớn và thiết kế bền bỉ.
2. Số điểm dừng và chiều cao tầng

Số điểm dừng và chiều cao tầng là những yếu tố quan trọng tác động đến chi phí lắp đặt thang máy. Các thông số này sẽ ảnh hưởng đến chiều dài cáp tải, ray dẫn hướng, loại động cơ, yêu cầu về tải trọng, và hệ thống an toàn.
Số điểm dừng càng nhiều, thang máy cần được trang bị động cơ mạnh mẽ hơn để đảm bảo khả năng vận hành ổn định. Điều này đồng nghĩa với việc chi phí đầu vào cho động cơ sẽ tăng lên. Ví dụ, một thang máy dùng cho nhà 3 tầng có thể sử dụng động cơ công suất 2.0 kW. Nhưng thang máy phục vụ tòa nhà 10 tầng có thể yêu cầu động cơ công suất 5.0 kW trở lên.
Hệ thống cáp tải và ray dẫn hướng cũng phải kéo dài hơn theo số tầng. Dây cáp cũng cần có kích thước lớn hơn để đảm bảo độ bền và an toàn khi vận hành ở các tòa nhà cao tầng.
Độ dài hành trình di chuyển của thang máy không chỉ phụ thuộc vào số tầng mà còn vào chiều cao giữa các tầng. Một tòa nhà có trần cao (thường thấy ở các trung tâm thương mại, khách sạn cao cấp) sẽ làm tăng chiều dài về cáp tải và ray dẫn hướng. Trong khi đó, nhà ở gia đình với chiều cao giữa các tầng tiêu chuẩn (2,8 – 3m) sẽ tiết kiệm được chi phí hơn.
3. Kích thước và tải trọng thang máy

Kích thước cabin và tải trọng thang máy là hai yếu tố quan trọng ảnh hưởng trực tiếp đến chi phí lắp đặt.
Kích thước cabin thang máy được thiết kế dựa trên nhu cầu sử dụng và thực tế hiện trạng của công trình. Cabin lớn hơn yêu cầu nhiều nguyên vật liệu hơn như inox, kính, hay các vật liệu trang trí. Đồng thời cần hệ thống ray dẫn hướng và khung cabin chịu lực tốt hơn.
Tải trọng của thang máy càng lớn, chi phí càng cao do các yêu cầu về cấu trúc và thiết bị vận hành tăng lên. Để tối ưu hóa chi phí, Quý khách nên cân nhắc kỹ nhu cầu sử dụng thực tế. Nếu sử dụng cho gia đình, cabin và tải trọng vừa đủ là lựa chọn tối ưu. Đối với các công trình lớn, hãy tham khảo ý kiến từ nhà cung cấp để chọn kích thước và tải trọng phù hợp, tránh lãng phí hoặc quá tải khi vận hành.
Tham khảo: Cách lựa chọn tải trọng thang máy phù hợp với nhu cầu sử dụng
4. Thang máy nhập khẩu và thang máy liên doanh
Thang máy nhập khẩu

Thang máy nhập khẩu là dòng thang máy được sản xuất hoàn toàn từ dây chuyền nhà máy ở nước ngoài. Được nhập khẩu nguyên đai nguyên kiện về Việt Nam.
Ưu điểm:
– Sản xuất với công nghệ hiện đại, dây chuyền khép kín
– Mẫu mã sang trọng, đẳng cấp, tinh tế trong từng chi tiết
– Chất lượng tiêu chuẩn quốc tế
Nhược điểm:
– Yêu cầu hố thang máy phải được thiết kế và thi công chính xác. Đúng tiêu chuẩn của nhà sản xuất, không thể thay đổi kích thước.
– Giá thang máy nhập khẩu khá cao
– Phí bảo trì, sửa chữa – thay thế thiết bị sau thời gian bảo hành khá cao.
– Thời gian đặt hàng lâu, dẫn đến việc lắp đặt thang máy kéo dài.
Thang máy liên doanh

Thang máy liên doanh là dòng thang máy được kết hợp giữa linh kiện thiết bị nhập khẩu và linh kiện cơ khí được sản xuất tại dây chuyền nhà máy trong nước. Mục đích nhằm tối ưu giá thành thang máy, thời gian đặt hàng mà vẫn đảm bảo chất lượng.
Ưu điểm:
– Giá thành hợp lý. Phù hợp với khả năng tài chính của các chủ đầu tư tại Việt Nam
– Kích thước thay đổi linh hoạt. Phù hợp với nhiều dạng công trình xây dựng.
– Nội thất cabin đa dạng, thể hiện được nét riêng của gia chủ
– Phí bảo trì, sửa chữa và thay thế linh kiện thấp, chi phí phát sinh và vận hành thang máy phù hợp túi tiền.
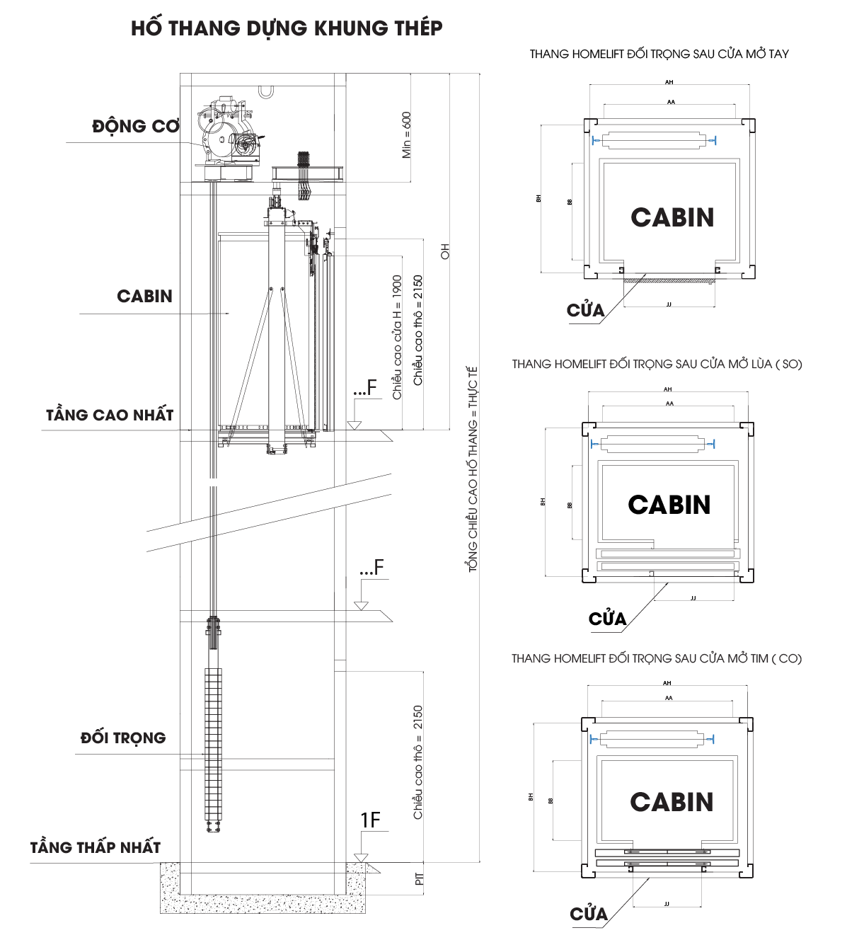
5. Cấu trúc công trình và hố thang máy

Cấu trúc công trình và hố thang máy là yếu tố ảnh hưởng trực tiếp đến chi phí lắp đặt thang máy. Việc xây dựng hoặc cải tạo hố thang máy không chỉ tác động đến tiến độ thi công mà còn ảnh hưởng đáng kể đến tổng chi phí của dự án.
Tình trạng hiện tại của công trình đóng vai trò quan trọng trong việc xác định chi phí lắp đặt:
- Công trình mới: Nếu công trình được thiết kế và xây dựng với không gian dành sẵn cho hố thang máy, chi phí lắp đặt sẽ thấp hơn. Trong trường hợp này, hố thang thường được thi công đồng bộ với công trình, giúp tiết kiệm chi phí nhân công và vật liệu.
- Công trình cải tạo hoặc nhà ở hiện hữu: Với các công trình chưa có sẵn hố thang, Quý khách cần tiến hành xây dựng hoặc cải tạo. Điều này làm tăng chi phí đáng kể. Việc phá dỡ, gia cố kết cấu, hoặc xây dựng thêm không gian để lắp đặt hố thang đòi hỏi chi phí lớn hơn và thời gian thi công kéo dài.
Hiểu rõ yếu tố tác động đến chi phí lắp đặt thang máy sẽ giúp Quý khách có cái nhìn tổng quan hơn và đưa ra quyết định đúng đắn. Nếu Quý khách đang lên kế hoạch lắp đặt thang máy, hãy để Thang máy Taza tư vấn để sát nhất với nhu cầu của Quý khách.
Hotline: 0969 514 888
